Grelhas de sobrepressão TDA

GSP-A

Persiana de sobrepressão para admissão de ar.


Abertura de lâminas para o interior para admissão do ar

Passo de 100 mm

Bastidor de 27 mm

 

Construção

Perfil exterior em alumínio extrudido

Lâminas em alumínio quinado

 

Sistemas de fixação

Parafusos

 

Acabamento

Alumínio escovado

 

 

 

Altura mínima 

( H )

Altura máxima 

( H )

Largura mínima 

( L )

Largura máxima 

( L )

200 mm 2000 mm 200
mm
1200 mm


GSP-R

Persiana de sobrepressão para expulsão de ar.


Abertura de lâminas para o interior para o exterior para expulsão do ar.

Passo de 100 mm

Bastidor de 27 mm

 

Construção

Perfil exterior em alumínio extrudido

Lâminas em alumínio quinado

 

Sistemas de fixação

Parafusos

 

Acabamento

Alumínio escovado

 

 

 

 

 

 

Altura mínima 

( H )

Altura máxima 

( H )

Largura míxima 

( L )

Largura máxima 

( L )

200 mm 2000 mm 200 mm 1200 mm


Clique na imagem para ver tamanho maior.

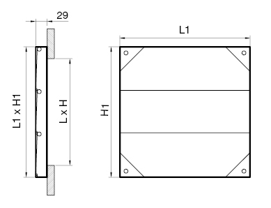
VK

Grelhas de sobrepressão para montagem em parede, com aro em alumínio e lâminas em PVC.


Aplicação

Para exaustão de ar em qualquer tipo de instalação

 

Material

Alumínio e PVC

 

Composição

Aro em alumínio

Lâminas em PVC

Modelo A – Tamanho até 590 x 590: 1 aro com lâmina simples

Modelo B – Tamanhos a partir de 670x670 : Reforçada com uma barra central e dupla fiada de lâminas

 

Cor

Cinza RAL 7015

Montagem

Através de parafusos no interior das lâminas (invisíveis).

 

Acessórios

Parafusos ( incluídos )

 

Perda de carga

Velocidade 2m/s – 20pa

Velocidade 3m/s – 25pa

Velocidade 4m/s – 30pa

 

 

Clique na imagem para ver tamanho maior.
  L x H [mm] L1 x H1 [mm]
VK 170 100 x 100 170 x 170
VK 200 160 x 160 200 x 200
VK 240 200 x 200 240 x 240
VK 290 250 x 250 290 x 290
VK 355 300 x 300 355 x 355
VK 390 350 x 350 390 x 390
VK 440 400 x 400 440 x 440
VK 490 450 x 450 490 x 490
VK 540 500 x 500 540 x 540
VK 590 550 x 550 590 x 590
VK 670 630 x 630 670 x 670
VK 750 710 x 710 750 x 750
VK 840 800 x 800 840 x 840
VK 940 900 x 900 940 x 940
VK 1040 1000 x 1000 1040 x 1040
 

OKR

Grelhas de sobrepressão em alumínio, para montagem em parede.


Aplicação

Para exaustão de ar em qualquer tipo de instalação

 

Material

Alumínio

 

Composição

Aro e lâminas em alumínio anodizado

 

Cor

Anodizado natural

Montagem

Através de parafusos no interior das lâminas (invisíveis)

 

Acessórios

Parafusos ( incluídos )

 

Perda de carga

Velocidade 2m/s – 5pa

Velocidade 3m/s – 8pa

Velocidade 4m/s – 12pa

 

 

Clique na imagem para ver tamanho maior.

 

 

Type LXH [mm] L1 X H1 [mm]
OKR 173 116 x 116 173 x 173
OKR 210 150 x 150 210 x 210
OKR 246 180 x 180 246 x 246
OKR 328 268 x 268 328 x 328
OKR 428 368 x 368 428 x 428
OKR 528 468 x 468 528 x 528
 

Topo