Grelhas de passagem de porta TDA

GPCA

Grelha de porta com contra aro.


Passo: 20 mm
Bastidor: 27 mm

 

Construção

As grelhas são constituídas por perfis de alumínio extrudido montados em V invertido para impossibilitar a visão para o interior .

 

Acabamento

Alumínio bruto

Anodizado cor natural

Lacado branco RAL 9110

 

Descarregue aqui folheto PDF.

Clique na imagem para ver tamanho maior.

 

 

Clique na imagem para ver tamanho maior.

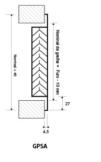
GPSA

Grelha de porta sem contra aro.


Passo: 20 mm
Bastidor: 27 mm

 

Construção

As grelhas são constituídas por perfis de alumínio extrudido montados em V invertido para impossibilitar a visão para o interior .

 

Acabamento

Alumínio bruto

Anodizado cor natural

Lacado branco RAL 9110

Descarregue aqui folheto PDF.

Clique na imagem para ver tamanho maior.

 

 

Clique na imagem para ver tamanho maior.

Topo