Difusores lineares TDA

E-STAR-TR

Difusor linear com deflector ajustável.


Aplicação
Insuflação de ar em instalações ar condicionado e ventilação.


Material

Difusor: Alumínio.

Comporta de regulação: Chapa de aço galvanizado.

Ponte de montagem: Chapa de aço galvanizado


Composição
Perfis de alumínio extrudido.

O fluxo de ar pode ser orientado através dos deflectores interiores.

 

A distribuição e regulação do ar pode ser feita através de uma comporta deslizante RD integrada nos perfis de alumínio (opcional).

 

A fixação pode ser feita por ponte de montagem PMD (opcional).
O comprimento máximo num só módulo é de 2 metros

 

Cor

Anodizado natural com deflectores interiores a preto.

Opcional: Branco RAL 9010 com deflectores interiores a preto.


Montagem

Tecto

Parede.

 

Acessórios

Comporta deslizante RD

Ponte de montagem PMD

Descarregue aqui folheto PDF.

Clique na imagem para ver tamanho maior.
 

Possibilidades de orientação
do fluxo de ar

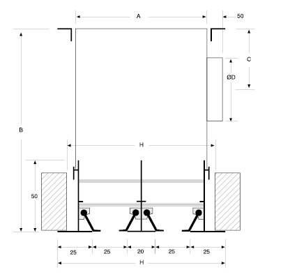
Modelos Dimensões
C Ø D H G
1 via 50 250 90 148 60 75
2 vias 95 300 115 198 105 120
3 vias 140 350 140 248 150 165
4 vias 185 400 165 298 195 210
5 vias 230 450 190 348 240 255
6 vias 275 500 215 398 285 300

 

Caudal

m³/h

1 Via 2 Vias 3 Vias 4 Vias
AL P dB(A) AL P dB(A) AL P dB(A) AL P
50 0,7 - 1,5 0,7 22
75 1 - 1,8 1 25 0,9 - 1,5 0,7 25
100 1,8 - 3,5 1,7 29 1,3 - 2 1 26 1 - 1,9 0,7 25
150 3,8 - 5,8 4 33 1,8 - 2,8 1,5 27 1,6 - 2,5 1 25 1,3 - 2 0,7 25
200 6 - 7,5 7 48 2,5 - 3,7 1,8 29 1,7 - 2,7 1 27 1,5 - 2,5 1 26
300 3,5 35 3,3 - 5 1,5 30 03-4 1 26
400 7 48 4,5 - 6 3 36 3,3 - 4,8 1,5 32
500 6 - 7,5 4 41 4 - 5,5 2 35
600 5 - 6,9 3,5 42
700 6,5 - 8 4,5 48
800 7,5 - 9 7 49

 

Caudal em m³/h por metro linear de difusor

AL - Alcance em metros para uma velocidade final de 0,5m/s e de 0,2m/s, para impulsão numa direcção

P - Perda de carga em mm/c.a. para regulação aberta a 100%

dB ( A ) - Nível de ruído, para regulação aberta a 100%

Para impulsão vertical o alcance (AL) reduz 2/3 do valor indicado na tabela, por isso o valor pretendido deve ser multiplicado por 1.5

A perda de carga para impulsão vertical será: P imp. Vertical = P imp. Horizontal X 0,4

 

DL, DL/R

Difusor linear com deflector ajustável.


Aplicação
Insuflação de ar em instalações ar condicionado e ventilação.


Material

Difusor: Alumínio.

Comporta de regulação: Chapa de aço galvanizado

Ponte de montagem: Chapa de aço galvanizado


Composição
Perfis de alumínio extrudido.

O fluxo de ar pode ser orientado através dos deflectores interiores.

 

A distribuição e regulação do ar pode ser feita através de uma comporta deslizante R integrada nos perfis de alumínio (opcional).

 

A fixação pode ser feita por ponte de montagem PM (opcional).


O comprimento máximo num só módulo é de 2,5 metros

 

Cor

Anodizado natural com deflectores interiores a preto.

Opcional: Branco RAL 9010 com deflectores interiores a preto.


Montagem

Tecto

Parede.

 

Acessórios

Comporta deslizante R

Ponte de montagem PM

Descarregue aqui folheto PDF.

Clique na imagem para ver tamanho maior.
 

Possibilidades de orientação
do fluxo de ar

Nº Vias Dimensões
A (mm) B (mm) C (mm) D (mm) E (mm) F (mm)
1 40 1,3 64 40 L + 30 50
2 40 1,3 98 74 L + 30 85
3 40 1,3 130 106 L + 30 117
4 40 1,3 164 140 L + 30 150

Largura mínima (L): 100 mm
Largura máxima (L): 2500 mm (por segmento)


Nº de Vias Dimensão Q (m³/h) NR [dB(A)]  Pt (Pa) X (m)
1 Via 1000 100 19 8,9 2,1
200 29 37,3 3,4
300 38 79,4 6,1
1200 200 25 25,4 2,8
300 36 51,9 4,2
400 41 93,3 6,9
1500 300 28 34,3 3,3
400 34 63,1 5,4
500 40 91,2 7,2
2000 400 22 12,7 2,9
600 38 27,9 10,1
700 46 35,5 13,7
2 Vias 1000 300 24 24,5 2,9
400 30 39,5 3,8
600 39 76,4 6,4
1200 400 26 28,4 3,1
600 35 54,7 4,5
800 40 95,3 7,5
1500 500 27 30,4 3,3
700 33 54,8 4,9
1000 41 97,1 7,6
2000 800 27 29,4 3,2
1000 31 36,6 5
1200 35 43,8 6,8
3 Vias 1000 400 24 21,1 3,1
600 32 37,9 4,2
800 37 66,8 6,2
1200 500 24 19,8 3,1
900 35 55,5 4,8
1200 43 89,9 7,9
1500 600 25 21,6 3,1
900 36 42,1 4,1
1200 41 70,6 5,9
2000 800 25 15,6 2,9
1000 30 30,6 3,2
1600 39 54 4,7
4 Vias 1000 600 27 26,5 3,5
800 32 43,7 4,4
1000 38 65,2 5,9
1200 700 26 26,1 3,4
1000 35 45,3 4,6
1400 41 75,6 6,6
1500 800 23 18,6 3,2
1200 32 40,2 4,3
1600 40 72,5 6,5
2000 1000 20 22,1 3,1
1400 25 30,1 3,9
1600 33 41 4,5

 

X = Alcance em m (velocidade terminal de 0,25m/s)

NR = Nível sonoro em dB(A)

Q (m³/h) = Caudal do Ar 

Pt = Perda de pressão total em Pa

 

ASM MD

Difusor linear com deflector ajustável e regulação de caudal


 

Aplicação

Insuflação e extracção em instalações ar condicionado e ventilação.

 

Material

Alumínio

 

Cor

Anodizado natural.

 

Montagem

Tecto

Parede.

 

Acessórios

Plenum não isolado PR

Plenum Isolado PRI

Ângulo 90° ASM K90

Conector para montagem em linha ASM-CON

Descarregue aqui folheto PDF.

 

Tipo  G [mm]  H [mm]
ASM 1 66 75
ASM 2 102 111
ASM 3 138 147
ASM 4 174 183

 

ASM-W MD

Difusor linear branco com deflector ajustável e regulação de caudal.


 

Aplicação

Insuflação e extracção em instalações ar condicionado e ventilação.

 

Material

Alumínio

 

Cor

Branco RAL 9010

 

Montagem

Tecto

Parede

 

Acessórios

Plenum não isolado PR

Plenum Isolado PRI

Ângulo 90° ASM-W K90

Conector para montagem em linha ASM-CON

Descarregue aqui folheto PDF.

 

 

 

Tipo

G [mm]

H [mm]

ASM 1

66

75

ASM 2

102

111

ASM 3

138

147

ASM 4

174

183

 

 

Topo